safe. l Trabajo final de grado
- Carla Rovira Ruiz
- 14 jun 2022
- 1 Min. de lectura
Mi trabajo final de carrera fue él trabajo que más he sufrido y disfrutado a partes iguales hasta el momento.
Cuando lo comenzamos la idea de encerrarnos en casa quedaba aún lejana, de manera que de ninguna manera hubiera pensado que acabaría realizando el proyecto que me abriría las puertas al mundo profesional (o no) des de mi casa, pero así fue.
. . . . . . . . . safe starts here
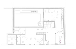
El proyecto se basa en la creación de un espacio de referencia en la comarca de Osona dirigido a las mujeres y al colectivo LGTB. Safe es un espacio libre de agresiones, donde hay libertad, donde puedes acudir en caso de encontrarte perdida, donde ir a pedir ayuda, donde ser escuchada. Este espacio son los oídos que te escucharán, los ojos que te verán, los brazos que te recogerán y la boca que guardará tus secretos.
Dirigido a todas aquellas usuarias que no se encuentran cómodas allí donde están, o que simplemente se están descubriendo, o, por el contrario, se están dando cuenta de una realidad en sus vidas, y puedan tener un espacio referente donde poder sentirse seguras.
Entendemos, pues, que el proyecto contempla la diversidad de usuarias como futuras ocupantes del espacio, aunque el espacio se encuentre dirigido a dos grupos de personas muy definidos, este nunca excluirá, ya que lo que busca es poder romper la barrera con este tabú y hacer al mismo tiempo una crítica social, cuestionando al mismo tiempo su propia existencia.
_____________________________
instagram: @byneuestudio
carla@byneuestudio.com
+34 646 96 83 97













































Comentarios